Aktuelle Projekte
Mauritiusstr. – Steinfurt-Bo.
Altenberger Str. – Steinfurt-Bo.
Sandweg – Steinfurt-Bo.
Portfolio
Privatbau
Einfamilienhaus I
Einfamilienhaus II
Einfamilienhaus III
Wohnungsbau
Gewerbebau
Öffentliche Bauten
Musterverträge
Kontakt
Home
Wohnquartier „Alte Molkerei“ Altenberger Straße in Steinfurt-Borghorst
3 Mehrfamilienhäuser
- für Familien
- barrierefrei/altengerecht
- Innenstadtnah
- Bahnhof und Lebensmittelgeschäfte fußläufig
18 Wohnungen von 73 bis 82 qm
- EG mit Gartenterrasse
- OG und DG mit Balkon
- Fahrstuhl
- Carport / Abstell- und Gerätehäuschen
Lageplan
als PDF Download
Querschnitt
als PDF Download
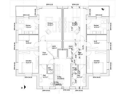
Dachgeschoss
als PDF Download
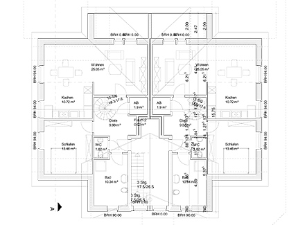
Obergeschoss
als PDF Download
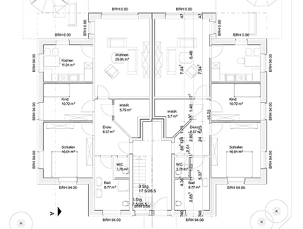
Erdgeschoss
als PDF Download
Keller
als PDF Download