Aktuelle Projekte
Mauritiusstr. – Steinfurt-Bo.
Altenberger Str. – Steinfurt-Bo.
Sandweg – Steinfurt-Bo.
Portfolio
Privatbau
Einfamilienhaus I
Einfamilienhaus II
Einfamilienhaus III
Wohnungsbau
Gewerbebau
Öffentliche Bauten
Musterverträge
Kontakt
Home
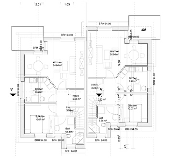
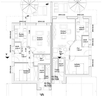
Mauritiusstraße 30 in Steinfurt-Borghorst
2 Doppelhaushälften direkt am Krankenhaus
ideal für
- ältere Paare
- Ärzte
- Krankenhauspersonal
In einer der begehrtesten Wohnlagen von Borghorst
- Provisionsfrei
- als Anlageobjekt
- zur Selbstnutzung
Wohnflächen EG ca. 61 qm
- EG mit Garten
Wohnfläche OG ca. 56 qm
- OG mit Balkon
Grundriss Erdgeschoss
als PDF- Download
Grundriss Obergeschoss
als PDF- Download